コンテンツにスキップ
MENU
会社概要
はじめての方へ
お問い合わせ
はじめての方はこちら
イベント・見学会
SUMIKA Labの家づくり
コンセプト
性能・仕様
家づくりの流れ
営業ポリシー
商品・実績
カーテンを
開けていたくなる平屋
平屋のメリット
施工事例
お客様の声
SUMIKA Labについて
代表物語
スタッフ紹介
会社概要
採用情報
家づくりの情報収集
間取り図鑑
ブログ
SUMIKA Lab
お問い合わせ
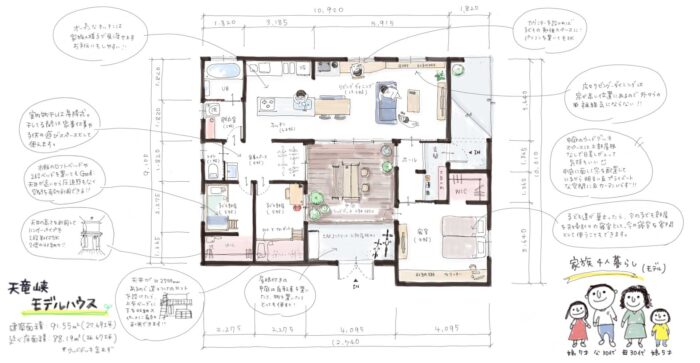
平屋 26.7坪 4人(267004)
飯田市|高低差を生かした家
中川村|山を一望できる中庭のある家
飯田市|コンパクトな平屋
中庭がつなぐ平屋の家
2階建ての家
飯田市|アウトドアリビングのある平屋
飯田市|大きな窓の景色、ととのう平屋の家
阿南町|25~30坪の平屋
もっと見る
イベント
資料請求
施工事例
お問い合わせ