コンテンツにスキップ
MENU
会社概要
はじめての方へ
お問い合わせ
はじめての方はこちら
イベント・見学会
SUMIKA Labの家づくり
コンセプト
性能・仕様
家づくりの流れ
営業ポリシー
商品・実績
カーテンを
開けていたくなる平屋
平屋のメリット
施工事例
お客様の声
SUMIKA Labについて
代表物語
スタッフ紹介
会社概要
採用情報
家づくりの情報収集
間取り図鑑
ブログ
SUMIKA Lab
お問い合わせ
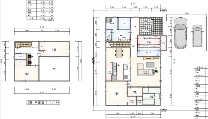
2階建41.83坪 4人(418304)
イベント
資料請求
施工事例
お問い合わせ